Préciser votre budget :
OK
Préciser votre budget :
OK
Préciser les pièces :
OK
Préciser la surface :
OK
Préciser la surface :
OK
Plus de critères
Retour aux annonces

A louer Local Commercial Saint-Claude (97120) - Guadeloupe

1 350 € cc / mois*
miniature miniature miniature

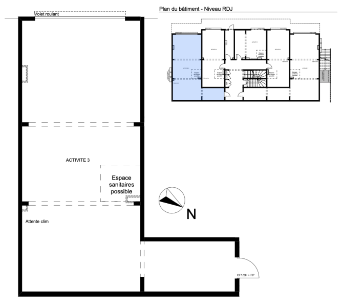
Local commercial à louer de 79 m2 à Saint-Claude - Idéal pour commerce de proximité

En plein cœur de Saint-Claude, face à la Mairie, nous vous proposons ce local commercial de 79 m2 à louer, situé au sein d'une petite résidence à taille humaine composée de 8 logements et 7 commerces.
Le local est livré brut, avec les attentes en eau et électricité, et est sécurisé par un volet roulant. Une belle opportunité pour toute activité commerciale.
Caractéristiques du bien :
Surface : 79 m2
Local livré brut avec attentes en eau et électricité
Fermé par un volet roulant
Disponible immédiatement
Emplacement idéal en face de la Mairie, au centre de Saint-Claude, proche de l'université
Parfait pour installer un commerce de proximité
Ce local bénéficie d'une excellente visibilité grâce à son emplacement stratégique dans un quartier dynamique, ce qui en fait un choix idéal pour un commerce de proximité.
Loyer HT : 1350 euros/mois
Charges locatives HT : 95 euros/mois
Pour plus d'informations ou pour organiser une visite, contactez-nous au [coordonnées réservées].

Caractéristiques de ce local commercial à louer à Saint-Claude (97120)

  • Surface : 79 m²
  • Référence de l'annonce : 1891-C3

Cette annonce immobilière vous est proposée par :

ALIAS IMMOBILIER

97122 Baie Mahault

Ce bien vous intéresse ?
Contactez l'agence dès aujourd'hui...

En savoir plus sur l'agence ALIAS IMMOBILIER

Cette agence immobilière propose à ce jour 54 biens à la vente et 24 biens à la location sur Immodesiles.fr.

Vous pouvez consulter le barème d'honoraires de l'agence.

Autres locaux commerciaux à louer à Saint-Claude (97120), susceptibles de vous intéresser

local commercial à louer de 89 m2 à saint-claude - idéal pour commerce de proximité 4 Local commercial Saint-Claude (97120) 89 m² En plein cÅ“ur de Saint-Claude, face à la Mairie, nous vous proposons ce local commercial de 89 m2 à louer, situé au sein d'une petite résidence à taille humaine composée de 8 logements et 7 commerces.Le local est livré brut, avec les attentes en eau et électricité, et est sécurisé par un... Réf. 1891-C7Alias Immobilier 1 590 € cc / mois local commercial à louer de 45 m2 à saint-claude - idéal pour commerce de proximité 4 Local commercial Saint-Claude (97120) 45 m² En plein cÅ“ur de Saint-Claude, face à la Mairie, nous vous proposons ce local commercial de 45 m2 à louer, situé au sein d'une petite résidence à taille humaine composée de 8 logements et 7 commerces.Le local est livré brut, avec les attentes en eau et électricité, et est sécurisé par un... Réf. 1891-C6Alias Immobilier 950 € cc / mois À louer - local commercial neuf de 47 m2 - université - saint-claude 5 Local commercial Saint-Claude (97120) 47 m² Situé en plein centre de Saint-Claude, à quelques pas de l'Université de Saint-Claude et de la Médiathèque, nous vous proposons ce local commercial de 47 m2 à louer, au rez-de-chaussée d'un petit immeuble de ville.Caractéristiques principales :Surface : 47 m2, livré brut, prêt à être amÃ... Réf. SC-47M2-C1Alias Immobilier 1 000 € cc / mois saint-claude -À louer   local professionnel lumineux de 60 m2 en rez-de-jardin 8 Local commercial Saint-Claude (97120) 60 m² Situé en rez-de-jardin d’une maison, ce spacieux local professionnel de 60 m2 offre un cadre calme et apaisant, idéal pour les activités de bien-être.Lumineux, il dispose de fenêtres laissant entrer la lumière naturelle et d’une fermeture sécurisée grâce à un volet roulant motorisé. I... Réf. 1094Sprimtour 900 € cc / mois locaux commerciaux à louer à saint-claude, secteur belost - 100m2 minimum, livraison janvier 2026 4 Local commercial Saint-Claude (97120) 100 m² Disponible à la location à partir de janvier 2026, cet ensemble immobilier en cours de construction situé à Saint-Claude, secteur Belost, propose des locaux commerciaux d'une surface minimale de 100 m2, disponibles tant au rez-de-chaussée qu'au 1er étage.Caractéristiques du bien :Surface : Lo... Réf. 1870LCAlias Immobilier 2 300 € cc / mois