Préciser votre budget :
OK
Préciser les pièces :
OK
Préciser les chambres :
OK
Préciser la surface :
OK
Préciser la surface :
OK
Plus de critères
Retour aux annonces

A vendre Appartement 3 pièces Saint-Paul (97460) - Réunion

264 869 € FAI* soit 4 069 € /m²
miniature miniature miniature miniature miniature
encart bt credits financements

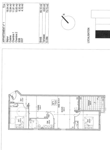
EP3419 – APPARTEMENT T3 – 65,10 m² – SAINT-PAUL 97460

Situé dans la commune très recherchée de Saint-Paul (97460), cet appartement de type T3 d’une surface de 65,10 m² bénéficie d’un emplacement privilégié au cœur de l’Ouest de l’île.
Ville emblématique de La Réunion, Saint-Paul séduit par sa qualité de vie et son dynamisme économique. Elle offre :
✔ un accès rapide aux plages de l’Ouest et à Saint-Gilles-les-Bains
✔ une proximité immédiate avec Le Port et Saint-Denis
✔ de nombreux commerces, écoles et services
✔ un cadre de vie agréable entre littoral, marché forain et espaces naturels
Un secteur particulièrement recherché pour une résidence principale comme pour un investissement locatif.
APPARTEMENT T3 – 65,10 m²
Cet appartement fonctionnel et lumineux est situé au sein d’une résidence en copropriété.
Composition
Séjour spacieux
Cuisine
Deux chambres
Salle de bains
WC
L’agencement des pièces offre confort et praticité au quotidien.
Les atouts du bien
✔ Situation privilégiée dans l’Ouest de l’île
✔ Proximité immédiate des commodités
✔ Accès rapide aux axes principaux
✔ Appartement idéal pour habiter ou investir
Investissement locatif – Secteur Saint-Paul
Le marché locatif de l’Ouest reste très dynamique avec une forte demande locative, notamment pour les appartements de type T3.
Estimation de loyer
Surface : 65,10 m²
➡ Loyer estimé : 1 100 € à 1 200 € / mois
➡ Revenus locatifs annuels estimés :
13 200 € à 14 400 €
Un rendement attractif dans un secteur à fort potentiel locatif et patrimonial.
Un bien idéal
Cet appartement constitue :
✔ un excellent investissement locatif sécurisé
✔ une résidence principale confortable
✔ un bien patrimonial dans l’Ouest de La Réunion
💰 Prix : 264 869 € – Honoraires charge vendeur
📌 Référence annonce : EP3419
Appartement vendu libre de toutes occupations , vendu dans une copropriété de 12 lots
Montant moyen annuel de la quote part de charges courantes: 1512€
Aucune procédure en cours menée sur le fondement de l'article 29-1 A et 29-1 de la loi n° 65-557 du 10 juillet 1965 et de l'article L. 615-6 du CCH
Annonce proposée par :
Eve PARIS – Négociatrice en immobilier
📞 [coordonnées réservées]
📱 [coordonnées réservées]
📧 [coordonnées réservées] />CABINET LEMERLE ET RIVIERE by Kazanou
45 bis rue du Four à Chaux
97410 Saint-Pierre
Informations sur les risques :
www.georisques.gouv.fr
Nos honoraires :
www.lemerle-riviere.re/honoraires.pdf

Caractéristiques de cet appartement 3 pièces à vendre à Saint-Paul (97460)

  • Nombre de pièces : 3 pièces
  • Surface habitable : 65.1 m²
  • Référence de l'annonce : EP-3419
  • Prix de vente : 264 869 € FAI (Frais d'Agence Inclus)*
encart bt credits financements

Cette annonce immobilière vous est proposée par :

LEMERLE & RIVIERE

Ce bien vous intéresse ?
Contactez l'agence dès aujourd'hui...

En savoir plus sur l'agence LEMERLE & RIVIERE

Cette agence immobilière propose à ce jour 28 biens à la vente et 9 biens à la location sur Immodesiles.fr.

Le barème d'honoraires de l'agence ne nous a pas été transmis.

Autres appartements à vendre à Saint-Paul (97460), susceptibles de vous intéresser

appartement 4 pièces neuf dernier étage à l'Étang saint-paul 8 Appartement 4 pièces neuf dernier étage à l'étang saint-paul Saint-Paul (97460) 4 pièces, 3 chambres, 80 m² hab. Situé dans le quartier recherché de l'Étang à Saint-Paul, ce programme immobilier neuf propose des appartements du T2 au T4, conçus pour offrir confort, luminosité et qualité de vie. La résidence, à taille humaine, bénéficie d'une architecture moderne et de beaux espaces de vie ouverts s... Réf. 7596-14-050326Prmi Nord/est 487 000 € soit 6 120 € /m² appartement à vendre t3 boucan canot st gilles les bains rdc 6 Appartement à vendre t3 boucan canot st gilles les bains rdc Saint-Paul (97460) 3 pièces, 2 chambres, 60 m² hab. Appartement T3 BOUCAN CANOT vendu LibreDécouvrez cet appartement T3 de 69,35 m² environ avec varangue, offrant un cadre de vie idéal pour une famille ou pour les vacances. L'appartement, en rez de jardin, comprend un séjour avec une cuisine ouverte aménagée et équipée, une salle d'eau à l'i... Réf. 2530-ARHArh Immobilier 303 525 € soit 5 059 € /m² saint paul / centre ville: appartement t2  dernier etage  dans residence  securisee , 8 Saint paul / centre ville: appartement t2 dernier etage dans residence securisee , Saint-Paul (97460) 2 pièces, 1 chambre, 43 m² hab. **NOUVELLE EXCLUSIVITÉ A SAISIR** Claire de l'agence PRMI vous propose à la vente cet appartement d'une surface habitable d'environ 43 m², situé dans une résidence sécurisée, très recherchée, sur le secteur de Saint-Paul centre-ville, front de mer. Un bien idéal pour une résidence princ... Réf. 7625CFPrmi Sud/ouest 216 000 € soit 5 023 € /m² magnifique appartement t2 saint paul 3 Magnifique appartement t2 saint paul Saint-Paul (97460) 2 pièces, 1 chambre, 46 m² hab. Appartement T2 de 46m2 et 12m2 de varangue dans une magnifique résidence situé idéalement sur St Paul. Cette résidence, offre un cadre privilégié avec accès rapide à la plage de Boucan Canot, au centre-ville et à la plus grande piste cyclable de l'île. Son architecture contemporaine mêle ... Réf. 186/2025D&b Capital 292 000 € soit 6 348 € /m² magnifique appartement t3 saint paul 3 Magnifique appartement t3 saint paul Saint-Paul (97460) 3 pièces, 2 chambres, 66 m² hab. Appartement T3 de 66m2 et 13m2 de varangue dans une magnifique résidence situé idéalement sur St Paul. Cette résidence, offre un cadre privilégié avec accès rapide à la plage de Boucan Canot, au centre-ville et à la plus grande piste cyclable de l'île. Son architecture contemporaine mêle ... Réf. 186/2025D&b Capital 365 000 € soit 5 530 € /m²