Préciser votre budget :
OK
Préciser votre budget :
OK
Préciser les pièces :
OK
Préciser la surface :
OK
Préciser la surface :
OK
Plus de critères
Retour aux annonces

A vendre Local commercial 1 pièce La Possession (97419) - Réunion

268 588 € FAI* soit 3 488 € /m²
miniature miniature miniature
encart bt credits financements

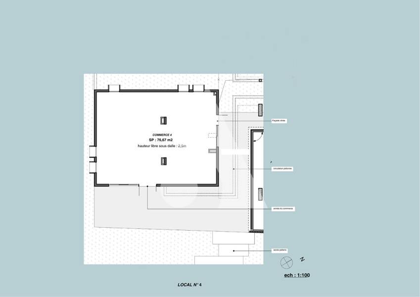
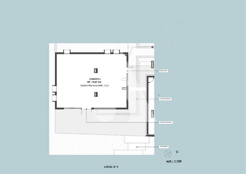
Local commercial La Possession 1 pièce(s) 77 m2

L'agence Sixième Avenue de Saint-Denis vous propose un local à usage commercial, d'environ 77 m², situé dans une zone très fréquentée de la Possession, au coeur de ville, à 50 mètres du futur centre commercial Carrefour ! Le local se trouve sur la promenade des Banians, un axe entièrement piéton qui accueillera 17 ateliers dédiés aux commerces et aux services. Cet espace a été pensé pour créer un véritable lieu de vie, avec de nombreux logements à proximité et une forte dynamique commerciale. Vous souhaitez installer votre entreprise dans un secteur prisé de la Réunion? N'attendez pas, contactez nous au [coordonnées réservées] pour plus d'informations. Prix du bien : 268588 euros FAI Honoraires agence : 6550 euros charge vendeur et 6550 euros charge acquéreur Taxes foncières estimées : bien neuf Charges annuelles : A venir Mandat n° 177 Non soumis au DPE. Consommation énergétique primaire : Non communiquée Consommation énergétique finale : Non communiquée Nombre de lots copro : en cours de constitution Les informations sur les risques auxquels ce bien est exposé sont disponibles sur le site Géorisques : www.georisques.gouv.fr (2.50 % honoraires TTC à la charge de l'acquéreur.) Copropriété de 111 lots - dont 110 lots habitation.(). Océane MAILLOT (EI) Agent Commercial - Numéro RSAC : 944700277 - Saint-Denis de la Réunion.

Caractéristiques de ce local commercial 1 pièce à vendre à La Possession (97419)

  • Nombre de pièces : 1 pièce
  • Surface : 77 m²
  • Référence de l'annonce : Atelier4-314
encart bt credits financements

Cette annonce immobilière vous est proposée par :

Sixième Avenue

97400 Saint-Denis

Ce bien vous intéresse ?
Contactez l'agence dès aujourd'hui...

En savoir plus sur l'agence Sixième Avenue

Cette agence immobilière propose à ce jour 32 biens à la vente et 3 biens à la location sur Immodesiles.fr.

Le barème d'honoraires de l'agence ne nous a pas été transmis.

Autres locaux commerciaux à vendre à La Possession (97419), susceptibles de vous intéresser

local commercial la possession 1 pièce(s) 80 m2 5 Local commercial la possession 1 pièce(s) 80 m2 La Possession (97419) 1 pièce, 80 m² L'agence Sixième Avenue de Saint-Denis vous propose un local à usage de bureaux, d'environ 80 m² avec 1 place de parking, situé dans une zone très fréquentée de la Possession, au coeur de la ville, à 50 mètres du futur centre commercial Carrefour. Le local se trouve sur la promenade des Ban... Réf. 303Sixième Avenue 289 153 € soit 3 614 € /m² local commercial la possession 1 pièce(s) 87 m2 3 Local commercial la possession 1 pièce(s) 87 m2 La Possession (97419) 1 pièce, 88 m² L'agence Sixième Avenue de Saint-Denis vous propose un local à usage commercial, d'environ 87 m² avec 2 places de parking, situé dans une zone très fréquentée de la Possession, au coeur de la ville, à 50 mètres du futur centre commercial carrefour ! Le local se trouve sur la promenade des B... Réf. LOCAL2-315Sixième Avenue 312 285 € soit 3 559 € /m² local d'activité la possession 331 m2 5 Local d'activité la possession 331 m2 La Possession (97419) 331 m² L'agence Sixième Avenue de Saint-Denis vous propose un local à venir au sein d'un pôle d'activités à la Possession, bénéficiant d'une situation géographique stratégique, et proche d'une grande surface alimentaire générant un grand flux de personnes. Un local dont la typologie s'adresse ... Réf. localflex3-256Sixième Avenue 1 025 081 € soit 3 097 € /m² local d'activité - la possession 1 pièce(s) 91 m2 4 Local d'activité - la possession 1 pièce(s) 91 m2 La Possession (97419) 1 pièce, 91 m² L'agence Sixième Avenue de Saint-Denis vous propose un local d'activités, d'environ 91 m² avec 1 place de parking, en RDC, situé dans une zone très fréquentée de la Possession, au coeur de la ville. Le local se trouve sur la promenade des Banians, un axe entièrement piéton qui accueillera 1... Réf. local-numero3-307Sixième Avenue 330 356 € soit 3 614 € /m² local d'activité - la possession 1 pièce(s) 91 m2 2 Local d'activité - la possession 1 pièce(s) 91 m2 La Possession (97419) 1 pièce, 92 m² L'agence Sixième Avenue de Saint-Denis vous propose un local d'activités, d'environ 91 m², dont 38.79 m² en RDC et 52.74 en réserve en R+1, situé dans une zone très fréquentée de la Possession, au coeur de la ville, à 50 mètres du futur centre commercial Carrefour. Ce local est actuellem... Réf. local1-313Sixième Avenue 330 826 € soit 3 614 € /m²