Préciser votre budget :
OK
Préciser votre budget :
OK
Préciser les pièces :
OK
Préciser la surface :
OK
Préciser la surface :
OK
Plus de critères
Retour aux annonces

A vendre Bureaux Saint-Louis (97450) - Réunion

163 889 € FAI* soit 145 € /m²
miniature miniature miniature miniature miniature miniature miniature miniature
encart bt credits financements

A VENDRE - LOT DE BUREAUX A PARTIR DE 50.35 M2 ENVIRON - SAINT-LOUIS - A PARTIR DE 163 889 € HAI

A VENDRE - Le Cabinet Habilis vous propose à la vente un ensemble de 14 bureaux situés à SAINT-LOUIS dans le centre d'affaires ORION.
L’immeuble de bureaux ORION s’élève sur 4 niveaux avec 27 locaux modulables sur une surface utile totale de 2 856m 2.
Au Rez de Chaussée, des commerces et une zone de restauration seront proposés afin d’offrir aux usagers des services de qualités au sein d’un seul espace.
L’accès aux étages sera desservi par un ascenseur. L’implantation du bâtiment en U permet la création d’un espace libre central traité comme un patio planté. Les lots disponibles à la commercialisation sont les suivants :
- Au deuxième étage :
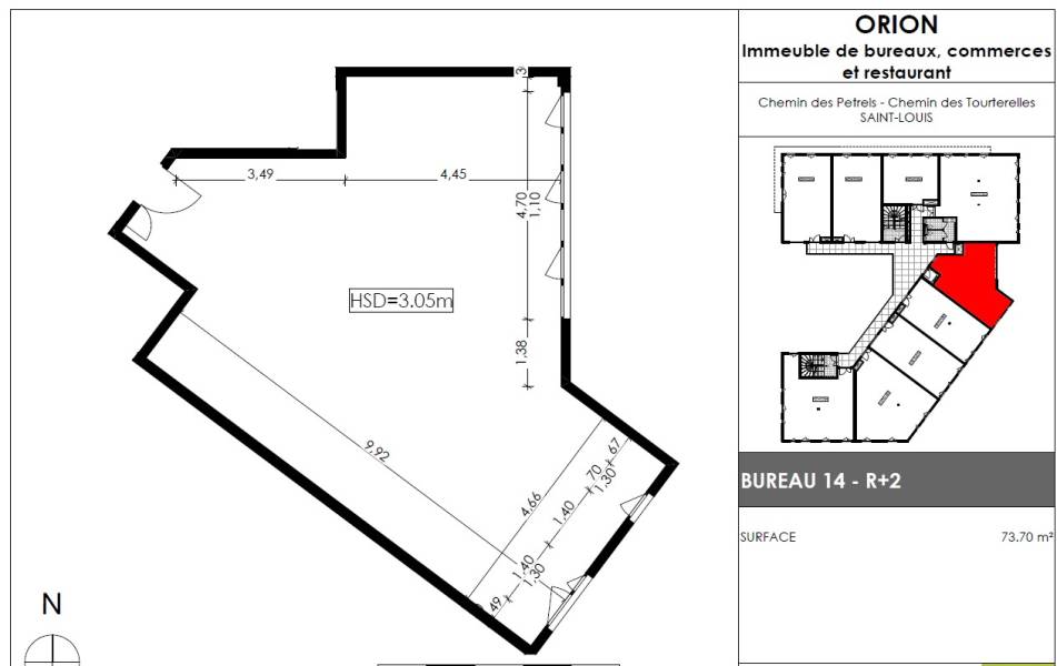
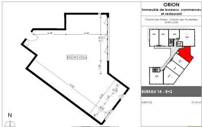
Lot 14 : Un bureau de 73.7 m2 environ et deux places de parking au prix de 247 890 € HAI.
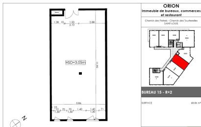
Lot 15 : Un bureau de 68.86 m2 environ et deux places de parking au prix de 224 139 € HAI.
Lot 16 : Un bureau de 68.86 m2 environ et deux places de parking au prix de 224 139 € HAI
Lot 17 : Un bureau d'environ 95.08 m2 et deux places de parking au prix de 309 485 € HAI.
Lot 18 : Un bureau d'environ 93.53 m2 et deux places de parking au prix de 304 440 € HAI
- Au troisième étage :
Lot 19 : Un Bureau de 77.91 m2 environ et deux places de parking au prix de 253 597 € HAI
Lot 20 : Un bureau de 78.86 m2 environ ainsi que deux places de parking au prix de 256 890 € HAI
Lot 21 : Un bureau de 50.35 m2 environ et une place de parking au prix de 163 889 € HAI.
Lot 22 : Un bureau de 121.08 m2 environ et trois places de parking au prix de 394 115 € HAI
Lot 23 : Un bureau de 73.7 m2 environ et deux places de parking au prix de 239 893 € HAI.
Lot 24 : Un bureau de 68.86 m2 environ et deux places de parking au prix de 224 139 € HAI.
Lot 25 : Un bureau de 68.86 m2 environ et deux places de parking au prix de 224 139 € HAI
Lot 26 : Un bureau d'environ 95.08 m2 et deux places de parking au prix de 309 485 € HAI.
Lot 27 : Un bureau de 93.53 m2 environ et deux places de parking au prix de 304 440 € HAI.
Les honoraires sont à la charge du vendeur.
Les bureaux se trouvent dans un quartier multi-services, à proximité de toutes commodités.
Date de livraison : 3ème Trimestre 2025 Eligible au Crédit d’impôt
Vous recherchez à investir dans un projet de qualité, que vous soyez un particulier ou un professionnel, ce projet immobilier est un placement rentable et sécurisé pour vous constituer un patrimoine et assurer votre avenir.
Vous pouvez consulter notre grille tarifaire en vigueur à l’adresse suivante : https://www.cabinet-habilis.com/docs/nos-honoraires.pdf
Les informations sur les risques auxquels ce bien est exposé sont disponibles sur le site géorisques : www.georisques.gouv.fr
Contactez Mr LANGLADE Dominique (Entrepreneur individuel), agent commercial sous le No RSAC 328 617 261 de Saint Pierre par téléphone au [coordonnées réservées] ou au [coordonnées réservées] ou par mail sur [coordonnées réservées] ou sur [coordonnées réservées] />Annonce rédigée sous la responsabilité éditoriale de l'agent commercial.

Caractéristiques de ce bureau à vendre à Saint-Louis (97450)

  • Surface : 1128.26 m²
  • Référence de l'annonce : 4513-DL
encart bt credits financements

Cette annonce immobilière vous est proposée par :

Cabinet HABILIS

Ce bien vous intéresse ?
Contactez l'agence dès aujourd'hui...

En savoir plus sur l'agence Cabinet HABILIS

Cette agence immobilière propose à ce jour 80 biens à la vente et 50 biens à la location sur Immodesiles.fr.

Le barème d'honoraires de l'agence ne nous a pas été transmis.