Préciser votre budget :
OK
Préciser les pièces :
OK
Préciser les chambres :
OK
Préciser la surface :
OK
Préciser la surface :
OK
Plus de critères
Retour aux annonces

A vendre Terrain 699 m² Sainte-Suzanne (97441) - Réunion

195 200 € FAI* soit 279 € /m²
miniature miniature miniature
Empruntez aux meilleures conditionslogo meilleur taux

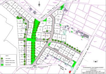
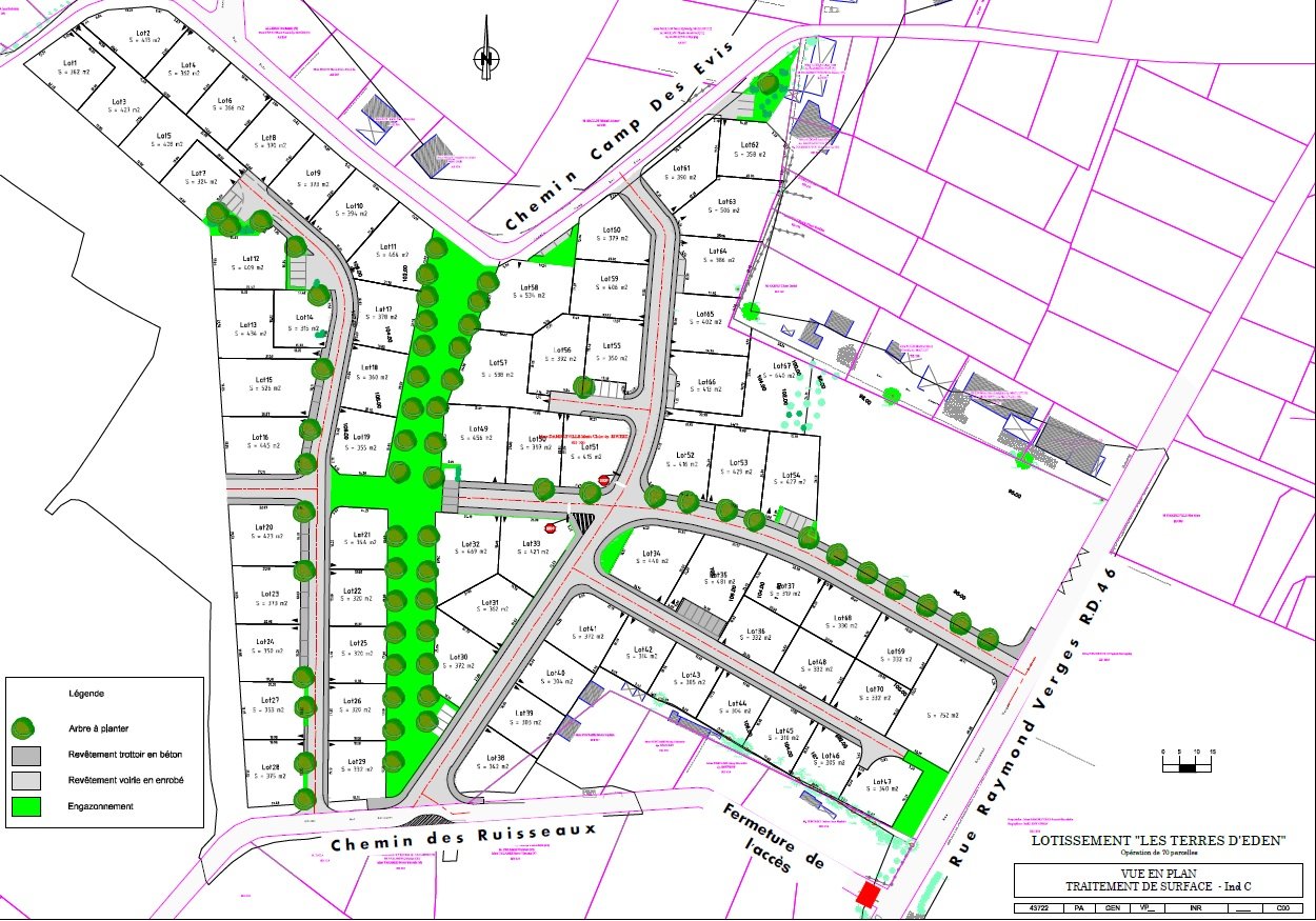
PARCELLE VIABILISEE DE 640 M2 - QUARTIER FRANCAIS

L'agence GTI, spécialiste de la vente de terrains à La Réunion, vous propose un nouveau lotissement de qualité. Situé à Quartier Français, secteur Camp des Evis, LES TERRES D'EDEN est un lotissement idéalement placé sur les premières hauteurs à 2 minutes du centre commercial GRAND EST et des accès 4 voies. Ce lotissement situé en zone Ua propose 70 parcelles de 302 m2 à 640 m2. Situé dans un secteur zone encore peu urbanisé, on y profite de la verdure environnante et d'une belle vue, notamment sur nos montagnes. Que vous souhaitiez construire votre habitation principale ou investir avec pour finalité la location et/ou la défiscalisation, n'hésitez pas à nous contacter. Nous sommes à votre disposition pour toute information et réservation. A partir de 99 990€
Zone Ua au PLU
HAUTEUR MAXIMALE 16 mètres au faitage
EMPRISE AU SOL Sans objet
LIVRAISON SEPTEMBRE 2020

Caractéristiques de ce terrain à vendre à Sainte-Suzanne (97441)

  • Surface habitable : 699 m²
  • Surface du terrain : 699 m²
  • Référence de l'annonce : 2934-67
  • Prix de vente : 195 200 € FAI (Frais d'Agence Inclus)*
Empruntez aux meilleures conditionslogo meilleur taux

Cette annonce immobilière vous est proposée par :

GTI

97400 Saint-Denis

Ce bien vous intéresse ?
Contactez l'agence dès aujourd'hui...

En savoir plus sur l'agence GTI

Cette agence immobilière propose à ce jour 15 biens à la vente et 10 biens à la location sur Immodesiles.fr.

Vous pouvez consulter le barème d'honoraires de l'agence.

Autres terrains à vendre à Sainte-Suzanne (97441), susceptibles de vous intéresser

superbe terrain 598 m2 dans les hauts de ste suzanne à bellevue 6 Superbe terrain 598 m2 dans les hauts de ste suzanne à bellevue Sainte-Suzanne (97441) terrain 598 m² OFIM Immobilier Ste SUZANNE vous propose un terrain constructible de 598 m² avec une case créole à démolir. Cette parcelle viabilisée, bornée, arborée, est proche de toutes les commodités avec vue mer. Atouts : Situation, Potentiel, Environnement. Votre Conseiller OFIM Ste SUZANNE, Mme MM... Réf. 623Ofim 150 538 € soit 252 € /m² sainte-suzanne : deux rives terrain constructible 444 m² 4 Sainte-suzanne : deux rives terrain constructible 444 m² Sainte-Suzanne (97441) terrain 444 m² Découvrez ce terrain plat de 444 m² situé dans le quartier de Deux Rives à Sainte-Suzanne. Idéalement placé en fond d'impasse, ce terrain en zone UB ne présente aucun risque naturel et offre un cadre de vie agréable. termes de construction PLU : -retrait 4 m de la route -possibilité implant... Réf. FDA7572Prmi Nord/est 132 000 € soit 297 € /m² a vendre terrain 372 m2 (commune bègue) 1 A vendre terrain 372 m2 (commune bègue) Sainte-Suzanne (97441) Bonjour, Ofim vous propose à la vente cette belle parcelle de 372m2 situé dans le secteur de la commune Begue. Idéalement située dans un secteur calme et proche de toutes commodités (Carrefour, écoles, pharmacie, route nationale), venez enfin concrétiser votre projet de construction qu’y ... Réf. 1391Ofim 140 400 € terrain constructible avec vue mer – sainte-suzanne, quartier français 1 Terrain constructible avec vue mer – sainte-suzanne, quartier français Sainte-Suzanne (97441) 1 pièce, 4 chambres, terrain 285 m² Dcouvrez cette parcelle de 285 m, idalement situe dans un secteur recherch de Sainte-Suzanne.Constructible, avec rseaux proximit immdiate (eau, EDF, tout--lgout).Vue dgage sur la mer, un atout rare dans le secteur.Accessibilit pratique : moins de 10 minutes de la 4 voies, proche de toutes commodit... Réf. 6553YDTeka Immobilier 107 000 € soit 375 € /m² À vendre terrain de 330 m2 entièrement constructible 1 À vendre terrain de 330 m2 entièrement constructible Sainte-Suzanne (97441) Bonjour Ofim a le plaisir de vous proposer à la vente cette magnifique parcelle de 330 m2 plane et entièrement constructible. Proche de toute commodités (supermarchés, pharmacie, médecins, arrêt de bus), venez bâtir la maison de vos rêves dans une impasse très calme dans le secteur de la... Réf. 1390Ofim 135 000 €