Préciser votre budget :
OK
Préciser les pièces :
OK
Préciser les chambres :
OK
Préciser la surface :
OK
Préciser la surface :
OK
Plus de critères
Retour aux annonces

A vendre Maison 4 pièces Saint-Martin (97150) - Saint-Martin

546 000 € FAI* soit 6 036 € /m²
miniature miniature miniature miniature miniature miniature miniature miniature
Empruntez aux meilleures conditionslogo meilleur taux

À VENDRE MAISON 4 PIECES EN DUPLEX NEUF VUE MER AVEC PISCINE À SAINT-MARTI

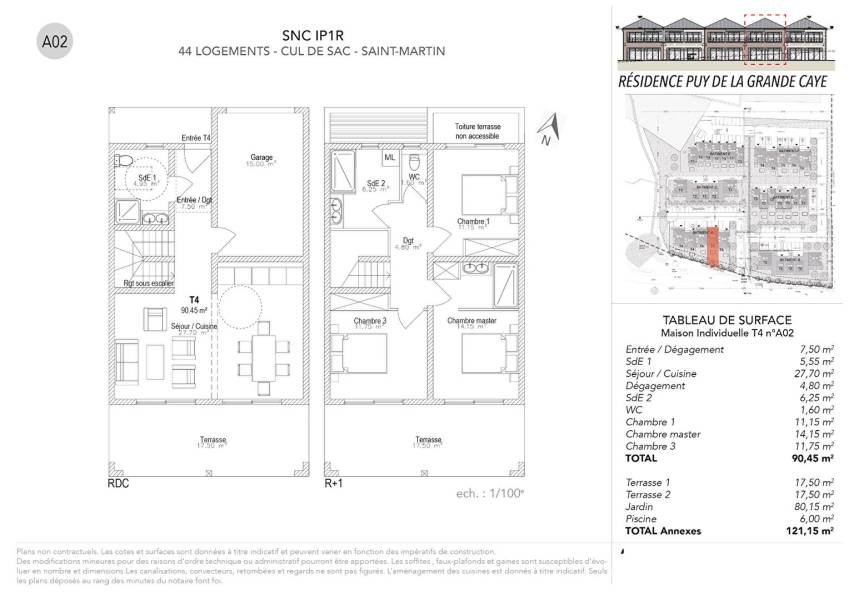
A vendre maison avec garage de 3 chambres en duplex et piscine en VEFA, de grand standing d'une superficie de 80,5m2 offrant une vue mer sur l'Ilet Pinel et Saint-Barth, double terrasse (2x17,25m2), jardin (80m2) et 1 place privatives dans une résidence privée et sécurisée à Cul de Sac à Saint-Martin. Toutes les pièces sont équipées de climatiseurs et de brasseurs d'air y compris le séjour, la cuisine ouverte sur le séjour est meublée et équipée d'un four, d'une plaque et d'un évier. La salle d'eau offre une grande douche à l'italienne . Avec des finitions de qualités, le sol sera proposé en carrelage 90x22 imitation parquet dans tout le logement. Le garage peut être fermé et faire office d'une chambre supplémentaire ou d'un bureau. En résidence principale ou secondaire, mais aussi pour des investissements locatifs, cette nouvelle adresse réunit tous les atouts pour en faire un lieu de vie incomparable entre la mer et le sable blanc. La résidence Les Jardins de la Grande Caye, située dans le quartier en expansion de Cul-de-Sac à Saint-Martin, présente une architecture élégante mêlant tradition caribéenne et modernité avec des pierres . Elle se compose de 44 logements répartis entre 20 appartements de 2 à 3 pièces et 24 villas mitoyennes de 3 à 4 pièces, conçus pour un confort optimal et une immersion dans un cadre naturel exceptionnel. Les bâtiments, disposés en plateforme le long de la colline, s'intègrent harmonieusement au paysage grâce à leur utilisation de pierres claires et d'ardoises. Cette appartement bénéficie de jardin privé et de terrasses, offrant des espaces de vie intérieurs et extérieurs confortables et bien pensés. Les Jardins de la Grande Caye bénéficient d'un emplacement privilégié entre Mont Vernon et l'Anse Marcel, offrant un accès facile à la plage de Baie Orientale et à l'animation de Marigot. A proximité de la zone commerciale de Hope Estate et de l'aéroport de Grand-Case, cette résidence est idéale pour ceux qui cherchent à combiner un cadre de vie tranquille avec la commodité d'accéder aux installations sportives, aux plages, et aux commodités urbaines. Les travaux de terrassement ont déja commencé, la livraison du programme est prévue au 4ième trimestre 2026 Réservez dès aujourd'hui votre maison de 4 pièces neuves à Saint-Martin et contactez votre agence Nestenn au [coordonnées réservées] ou Samuel au [coordonnées réservées] pour plus de renseignements. Les informations sur les risques auxquels ce bien est exposé sont disponibles sur le site Géorisques : www. georisques.gouv. fr.

Caractéristiques de cette maison 4 pièces à vendre à Saint-Martin (97150)

  • Nombre de pièces : 4 pièces
  • Nombre de chambres : 3 chambres
  • Surface habitable : 90.45 m²
  • Référence de l'annonce : A02
  • Prix de vente : 546 000 € FAI (Frais d'Agence Inclus)*
  • * Honoraires à la charge du vendeur
Empruntez aux meilleures conditionslogo meilleur taux

Cette annonce immobilière vous est proposée par :

NESTENN Guadeloupe

97122 Baie Mahault

Ce bien vous intéresse ?
Contactez l'agence dès aujourd'hui...

En savoir plus sur l'agence NESTENN Guadeloupe

Cette agence immobilière propose à ce jour 30 biens à la vente et 4 biens à la location sur Immodesiles.fr.

Le barème d'honoraires de l'agence ne nous a pas été transmis.