Préciser votre budget :
OK
Préciser les pièces :
OK
Préciser les chambres :
OK
Préciser la surface :
OK
Préciser la surface :
OK
Plus de critères
Retour aux annonces

A vendre Maison 6 pièces - Terrain 190 m² Saint-André (97440) - Réunion

264 000 € FAI* soit 1 535 € /m²
miniature miniature miniature
Empruntez aux meilleures conditionslogo meilleur taux

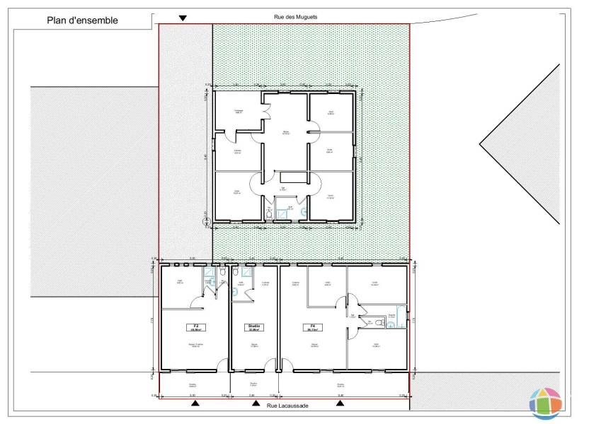
LOT DE 3 MAISONS A VENDRE ST-ANDRÉ CENTRE VILLE ILE DE LA RÉUNION

A vendre un lot de 3 maisons sur un terrain de 190M2 compos: D'un T1 de 32,96M2 + varangue de 7,20M2 lou: 420, D'un T2 de 48,06M2 + varangue de 10,60M2 lou, 490, D'un T4 de 89.13M2 + varangue de 19,41M2 lou: 800 soit un total de 1710 mensuel, annuel: 20520, situes proche de toutes commodits au centre ville de Saint-Andr, Ce bien vous est propos au prix de 264000 euros, honoraires la charge DU VENDEUR . DPE non requis. Contactez votre Agent mandataire Teka Immo KADER EI au [coordonnées réservées] ou [coordonnées réservées] inscrit au tribunal de Saint Denis sous le numro R.S.A.C 812 383 531.Annonce rdige sous la responsabilit ditoriale de l'agent. Barme visible sur le site de Teka Immo. http://www.tekaimmo.fr/pdf/honoraires.pdf Les informations sur les risques auxquels ce bien est expos sont disponibles sur le site Gorisques : www.georisques.gouv.fr\n

Caractéristiques de cette maison 6 pièces à vendre à Saint-André (97440)

  • Nombre de pièces : 6 pièces
  • Nombre de chambres : 3 chambres
  • Surface habitable : 172 m²
  • Surface du terrain : 190 m²
  • Référence de l'annonce : 6566K
  • Prix de vente : 264 000 € FAI (Frais d'Agence Inclus)*
  • * Honoraires à la charge du vendeur
Empruntez aux meilleures conditionslogo meilleur taux

Cette annonce immobilière vous est proposée par :

TEKA IMMOBILIER

97400 Saint-Denis

Ce bien vous intéresse ?
Contactez l'agence dès aujourd'hui...

En savoir plus sur l'agence TEKA IMMOBILIER

Cette agence immobilière propose à ce jour 113 biens à la vente et 14 biens à la location sur Immodesiles.fr.

Vous pouvez consulter le barème d'honoraires de l'agence.

Autres maisons à vendre à Saint-André (97440), susceptibles de vous intéresser

a vendre villa f6/7 de 165 m2 sur 751 m2 de terrain - construction à reprendre - st andré, secteur champ borne 6 A vendre villa f6/7 de 165 m2 sur 751 m2 de terrain - construction à reprendre - st andré, secteur champ borne Saint-André (97440) 7 pièces, 4 chambres, 165 m² hab., terrain 751 m² Vends villa en cours de construction de 165 m2 sur 751 m2 de terrain. Permis de construire de 2020 . Dans un environnement calme à Champ Borne/ Grand Canal, à proximité des écoles collèges... . Le gros oeuvre est réalisé. La villa se compose de 4 chambres, dont une suite parentale avec espa... Réf. T374GaÏa Patrimoine 262 500 € soit 1 591 € /m² À vendre – superbe villa f5 de 130 m² avec piscine sur terrain de 600 m² 7 À vendre – superbe villa f5 de 130 m² avec piscine sur terrain de 600 m² Saint-André (97440) 5 pièces, 130 m² hab., terrain 612 m² Située dans un secteur calme et résidentiel, cette belle villa moderne construite en 2016 offre de très belles prestations et un excellent confort de vie. Caractéristiques principales : Surface habitable : 130 m² Terrain : 600 m² entièrement clôturé et entretenu Piscine à coque de 3,5 ... Réf. 1360Ofim 349 468 € soit 2 688 € /m² maison f4 à salazie – mare à vieille place 1 Maison f4 à salazie – mare à vieille place Saint-André (97440) 4 pièces, 3 chambres, 70 m² hab., terrain 442 m² Situe dans le quartier calme et verdoyant de Mare Vieille Place Salazie, cette maison F4 d'une surface habitable de 70 m, accompagne dune vranda de 10 m, est une belle opportunit pour un investissement ou une rsidence principale.Descriptif du bien : Surface habitable : 70 m / Vranda : 10 m, parfai... Réf. 6379YDTeka Immobilier 154 255 € soit 2 204 € /m² maison neuve  a vendre en vefa st-andrÉ ile de la reuinon 8 Maison neuve a vendre en vefa st-andré ile de la reuinon Saint-André (97440) 4 pièces, 3 chambres, 108 m² hab., terrain 448 m² maison neuve en vefa, un F4 de 107,5M2 sur un terrain de 448M2 compose de 3 chambres, situe proche toutes commodits, proche changeur de la 4 voie et 5 minutes du centres ville de st-andr ( ruelle camalon) Ce bien vous est propos au prix de 377000 euros, honoraires la charge DU VENDEUR . DPE non req... Réf. 6320KTeka Immobilier 377 000 € soit 3 507 € /m² villa à champ borne 4 chambres avec piscine 8 Villa à champ borne 4 chambres avec piscine Saint-André (97440) 5 pièces, 130 m² hab., terrain 550 m² Belle villa contemporaine de 130 m², située dans un quartier résidentiel très calme et recherché de Champ Borne à Saint-André, à proximité immédiate des écoles, commerces et de la mer. Édifiée sur un terrain clos de 550 m², cette maison allie charme, confort et modernité. Elle s... Réf. 86434111Select Invest Immo 350 700 € soit 2 698 € /m²