Préciser votre budget :
OK
Préciser les pièces :
OK
Préciser les chambres :
OK
Préciser la surface :
OK
Préciser la surface :
OK
Plus de critères
Retour aux annonces

A vendre Maison 6 pièces - Terrain 190 m² Saint-André (97440) - Réunion

264 000 € FAI* soit 1 535 € /m²
miniature miniature miniature
Empruntez aux meilleures conditionslogo meilleur taux

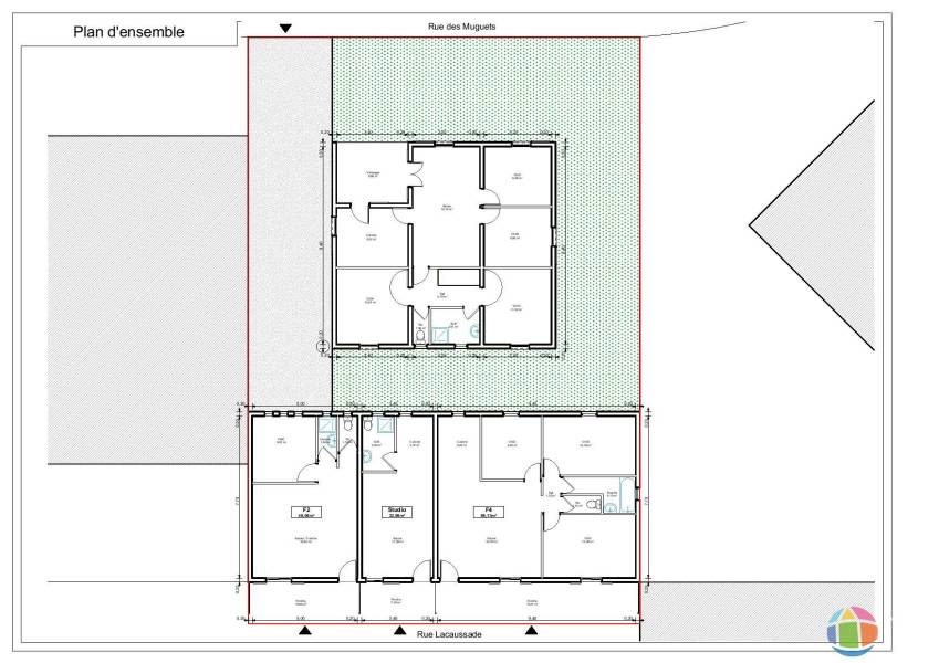
LOT DE 3 MAISONS A VENDRE ST-ANDRÉ CENTRE VILLE ILE DE LA RÉUNION

A vendre un lot de 3 maisons sur un terrain de 190M2 compos: D'un T1 de 32,96M2 + varangue de 7,20M2 lou: 420, D'un T2 de 48,06M2 + varangue de 10,60M2 lou, 490, D'un T4 de 89.13M2 + varangue de 19,41M2 lou: 800 soit un total de 1710 mensuel, annuel: 20520, situes proche de toutes commodits au centre ville de Saint-Andr, Ce bien vous est propos au prix de 264000 euros, honoraires la charge DU VENDEUR . DPE non requis. Contactez votre Agent mandataire Teka Immo KADER EI au [coordonnées réservées] ou [coordonnées réservées] inscrit au tribunal de Saint Denis sous le numro R.S.A.C 812 383 531.Annonce rdige sous la responsabilit ditoriale de l'agent. Barme visible sur le site de Teka Immo. http://www.tekaimmo.fr/pdf/honoraires.pdf Les informations sur les risques auxquels ce bien est expos sont disponibles sur le site Gorisques : www.georisques.gouv.fr\n

Caractéristiques de cette maison 6 pièces à vendre à Saint-André (97440)

  • Nombre de pièces : 6 pièces
  • Nombre de chambres : 3 chambres
  • Surface habitable : 172 m²
  • Surface du terrain : 190 m²
  • Référence de l'annonce : 6566K
  • Prix de vente : 264 000 € FAI (Frais d'Agence Inclus)*
  • * Honoraires à la charge du vendeur
Empruntez aux meilleures conditionslogo meilleur taux

Cette annonce immobilière vous est proposée par :

TEKA IMMOBILIER

97400 Saint-Denis

Ce bien vous intéresse ?
Contactez l'agence dès aujourd'hui...

En savoir plus sur l'agence TEKA IMMOBILIER

Cette agence immobilière propose à ce jour 115 biens à la vente et 13 biens à la location sur Immodesiles.fr.

Vous pouvez consulter le barème d'honoraires de l'agence.

Autres maisons à vendre à Saint-André (97440), susceptibles de vous intéresser

maison neuve a vendre en vefa st-andrÉ ile de la reuinon 8 Maison neuve a vendre en vefa st-andré ile de la reuinon Saint-André (97440) 4 pièces, 3 chambres, 108 m² hab., terrain 521 m² maison neuve en vefa, un F4 de 107,5M2 sur un terrain de 521M2 compose de 3 chambres, situe proche toutes commodits, proche changeur de la 4 voie et 5 minutes du centres ville de st-andr ( ruelle camalon) Ce bien vous est propos au prix de 402000 euros, honoraires la charge DU VENDEUR . DPE non req... Réf. 6319KTeka Immobilier 402 000 € soit 3 740 € /m² a vendre maison f4 sur 2 niveaux sur terrain de 350m2 à st andré 1 A vendre maison f4 sur 2 niveaux sur terrain de 350m2 à st andré Saint-André (97440) 4 pièces, 3 chambres, 74 m² hab., terrain 350 m² Duplex F4 de 74m2 habitable sur terrain de 350m2 vendre ST ANDRE comprenant au RDC sjour cuisine salLe de bain et WC et l tage 3 chambres, Ce bien se trouve sur l'avenue et est connect au tout l'gout .\nLes informations sur le risques auxquels ce bien est expos sont disponibles sur le site G... Réf. 5986Teka Immobilier 278 000 € soit 3 757 € /m² maison saint andre 8 pièce(s) 220 m2 8 Maison saint andre 8 pièce(s) 220 m2 Saint-André (97440) 8 pièces, 5 chambres, 220 m² hab., terrain 400 m² Dans un environnement calme et recherché à proximité immédiate du Chemin Lefaguyes, des commodités (commerces, écoles, médecins, salle de sport) et à moins de 5 min de la 4 voies, beaux volumes pour cette maison de 220 m² habitables / 315 m² utiles, édifiée sur une parcelle de 400 m².... Réf. 4989Guy Hoquet Saint-benoit 303 000 € soit 1 377 € /m² charmante maison f7 5 Charmante maison f7 Saint-André (97440) 174 m² hab. MAISON F6 - CHAMP-BORNE - 250 000€ H.I À Vendre – Maison F7 avec du cachet à Saint-André, secteur Champ-Borne Surface habitable : 174 m² | Terrain : 279 m² | Prix HAI : 250 000 € Située dans un quartier prisé de Champ-Borne, cette charmante maison F6 construite en 2003 offre une atmo... Réf. 41Fiximo 250 000 € soit 1 437 € /m² maison familiale secteur cambuston 8 Maison familiale secteur cambuston Saint-André (97440) 5 pièces, 4 chambres, 120 m² hab., terrain 407 m² Toujours à l'affut d'une belle affaire, LNA vous propose cette joile maison à étage tres bien entretenue située à St André, dans un secteur très calme , avec accès à la 4 voie aisé pour aller vers St DENIS ou dans l EST. Elle en composée en partie basse d'un salon / salle à manger, d'une... Réf. 1379La Nouvelle Agence 299 600 € soit 2 497 € /m²