Préciser votre budget :
OK
Préciser les pièces :
OK
Préciser les chambres :
OK
Préciser la surface :
OK
Préciser la surface :
OK
Plus de critères
Retour aux annonces

A vendre Appartement Saint-Denis (97400) - Réunion

399 000 € FAI* soit 3 819 € /m²
miniature miniature miniature miniature miniature miniature miniature miniature
Empruntez aux meilleures conditionslogo meilleur taux

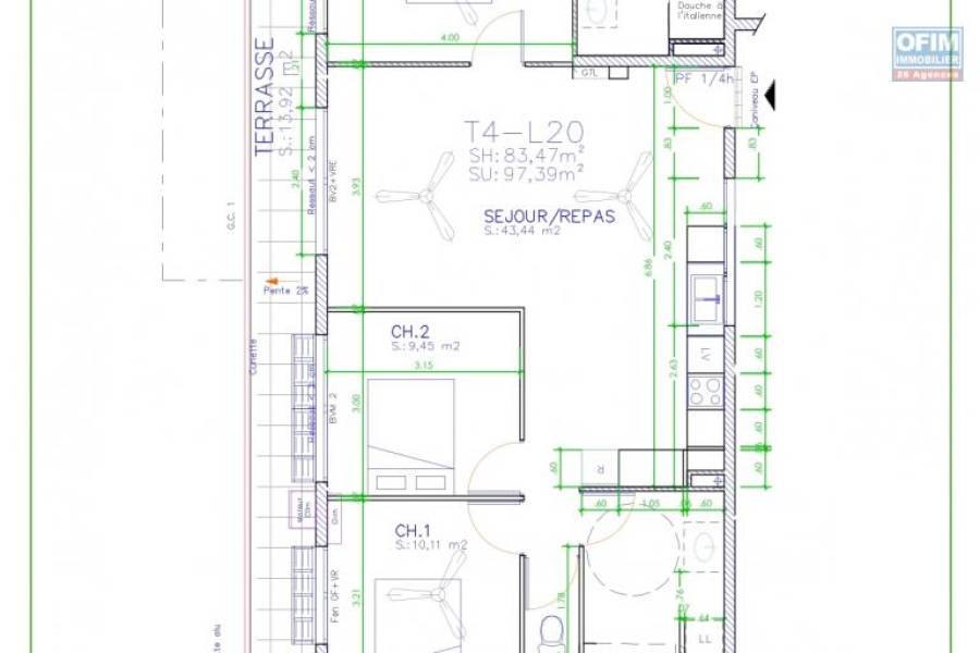
A VENDRE APPARTEMENT F4 DE 104.48 M2 AU CENTRE VILLE DE SAINT DENIS

OFIM vous propose à la VENTE cet appartement de type F4 de 104.48 m2 au 5eme Étages immeuble de 5 étages avec PARKING SOUS SOL Cet appartement comprend: 3 chambres. une cuisine ouverte, une pièce principale , salle de bain et VARANGUE 13.92 M2 PRIX DE VENTE 399.000€ Pour toute visite et informations contactez Mr Zakirhoussen ISSOUFALY +[coordonnées réservées]304 Honoraires à la charge du vendeur 5A72109, Numéro de mandat: 2457 Tél. commercial: [coordonnées réservées]

Caractéristiques de cet appartement à vendre à Saint-Denis (97400)

  • Surface habitable : 104.48 m²
  • Référence de l'annonce : 2457
  • Prix de vente : 399 000 € FAI (Frais d'Agence Inclus)*
Empruntez aux meilleures conditionslogo meilleur taux

Cette annonce immobilière vous est proposée par :

OFIM

Ce bien vous intéresse ?
Contactez l'agence dès aujourd'hui...

En savoir plus sur l'agence OFIM

Cette agence immobilière propose à ce jour 97 biens à la vente et 30 biens à la location sur Immodesiles.fr.

Le barème d'honoraires de l'agence ne nous a pas été transmis.

Autres appartements à vendre à Saint-Denis (97400), susceptibles de vous intéresser

appartement t4 neuf dans le centre-ville de saint-denis 7 Appartement t4 neuf dans le centre-ville de saint-denis Saint-Denis (97400) 4 pièces, 3 chambres, 75 m² hab. Une adresse confidentielle au coeur de la capitale réunionnaise Découvrez le programme immobilier LENA, une résidence neuve, intimiste et élégante, nichée dans une rue paisible à deux pas de la rue Jules Auber et du centre-ville historique de Saint-Denis. Un véritable havre de paix en plein... Réf. 7177-05-170925Prmi Nord/est 445 000 € soit 5 896 € /m² 8 Appartement 4 pièces Saint-Denis (97400) 4 pièces, 3 chambres, 67 m² hab. TRÈS RECHERCHÉ - APPARTEMENT 4 PIECES à ST DENIS - A VENDRE : Appartement 4 pièces avec un superbe emplacement à proximité du jardin de l'état. Vous rêvez d'un appartement rénové et bien situé ? Ne cherchez plus, nous avons le bien idéal pour vous ! Cet appartement de 4 pièces de 67 mÂ... Réf. TAPP926510Citya France Immobilier Saint-gilles 209 000 € soit 3 119 € /m² a vendre - appartement  f3 - 54.85 m2 environ - saint denis - 69 600 € hai 7 A vendre - appartement f3 - 54.85 m2 environ - saint denis - 69 600 € hai Saint-Denis (97400) 3 pièces, 2 chambres, 55 m² hab. IDEAL POUR LES INVESTISSEURS A VENDRE - Le Cabinet Habilis vous propose un appartement de type F3 de 54.85 m2 environ, sur le secteur de la Chaumière à SAINT DENIS. Proche de toutes commodités, écoles à proximité et à 5 min du Centre- Ville. Il est composé d'un séjour, d'une cuisine, de deu... Réf. 137-SD-MMCabinet Habilis 69 600 € soit 1 269 € /m² a vendre joli appartement f2 avec véranda face au parc de la trinité - st denis 5 A vendre joli appartement f2 avec véranda face au parc de la trinité - st denis Saint-Denis (97400) 2 pièces, 43 m² hab. Situé à Saint-Denis, face au parc de la trinité, découvrez ce charmant appartement de type F2 d'une superficie de 43.40 m², offrant un cadre de vie agréable et pratique. Il se compose d'une pièce principale lumineuse avec coin cuisine aménagée et équipée, d'une véranda, d'une chambre cli... Réf. 2363TOfim 120 000 € soit 2 765 € /m² 4 Appartement 2 pièces Saint-Denis (97400) 2 pièces, 1 chambre, 45 m² hab. T2 loué - Vue mer/montagne - Résidence récente - Saint-Denis (Montgaillard) - Investisseur ? Ce bien est pour vous ! Dans le quartier prisé de Montgaillard à Saint-Denis, à seulement 2 minutes à pied du parc de la Trinité, découvrez ce T2 déjà loué, situé au 2ème étage avec ascenseur... Réf. TAPP943860Citya Saint-denis 132 000 € soit 2 933 € /m²