Préciser votre budget :
OK
Préciser les pièces :
OK
Préciser les chambres :
OK
Préciser la surface :
OK
Préciser la surface :
OK
Plus de critères
Retour aux annonces

A vendre Appartement 3 pièces Mi-pente de l'Ouest (97435) - Réunion

335 000 € FAI* soit 4 931 € /m²
miniature miniature miniature miniature
Empruntez aux meilleures conditionslogo meilleur taux

Résidence Le Nico Appartement Saint Paul 3 pièce(s) à Saint Gilles les Hauts

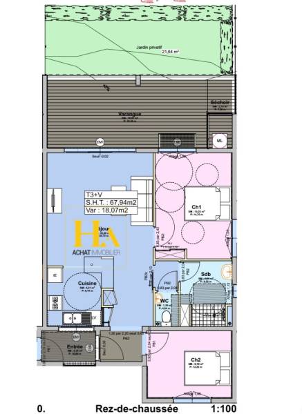
Découvrez Le NICO, une résidence neuve confidentielle de seulement 15 logements, idéalement située, secteur recherché de Saint-Gilles-les-Hauts. Appartement T3 en rez de jardin les appartements ont été conçus pour offrir : de beaux volumes intérieurs, une luminosité optimale, Prestations et confort : 1 place de parking Ascenseur Local deux-roues Aire de jeux Résidence conforme aux normes PMR et RTAA DOM Un emplacement stratégique, au calme, tout en restant connecté à l'Ouest de l'île. Une opportunité rare dans un secteur très prisé. Idéal résidence principale, résidence secondaire ou investissement patrimonial La résidence Le NICO s'inscrit dans les dispositifs en vigueur pour les programmes neufs, un avantage non négligeable pour les primo-accédants ou les investisseurs. Prix: 335 000 euros TTC HAI Honoraires charge vendeur Mandat n°975306 Pour plus d'informations, vous pouvez contacter : Sandrine POULLIAS Conseillère en immobilier HA IMMOBILIER [coordonnées réservées] [coordonnées réservées] Agent Commercial (EI) immatriculée au RSAC de Saint-Pierre de La Réunion n° 951838713 HA IMMOBILIER : 4 rue Franck Camille Cadet ZIE Les Sables 97427 L'Étang-Salé Carte professionnelle Transaction n° CPI 9742 2020 000 004 5143, délivrée par la CCI de La Réunion Assurance RCP : MMA IARD, 14 boulevard Marie et Alexandre Oyon, 72030 Le Mans Cedex 9 Plus d'informations sur www.ha.immo Les informations sur les risques auxquels ce bien est exposé sont disponibles sur : www.georisques.gouv.fr SANDRINE POULLIAS (EI) Agent Commercial - Numéro RSAC : 951838713 - Saint Denis de la Réunion.

Caractéristiques de cet appartement 3 pièces à vendre à Mi-pente de l'Ouest (97435)

  • Nombre de pièces : 3 pièces
  • Nombre de chambres : 2 chambres
  • Surface habitable : 67.94 m²
  • Référence de l'annonce : 6773
  • Prix de vente : 335 000 € FAI (Frais d'Agence Inclus)*
  • * Honoraires à la charge du vendeur
Empruntez aux meilleures conditionslogo meilleur taux

Cette annonce immobilière vous est proposée par :

HA.immo

97427 Etang Salé

Ce bien vous intéresse ?
Contactez l'agence dès aujourd'hui...

En savoir plus sur l'agence HA.immo

Cette agence immobilière propose à ce jour 112 biens à la vente et 1 bien à la location sur Immodesiles.fr.

Le barème d'honoraires de l'agence ne nous a pas été transmis.

Autres appartements à vendre à Mi-pente de l'Ouest (97435), susceptibles de vous intéresser

eperon : grand t3 avec 2 parkings dont un sous-sol 8 Appartement 3 pièces Mi-pente de l'Ouest (97435) 3 pièces, 2 chambres, 72 m² hab. Très bel appartement T3 traversant très agréable à vivre, qui dispose d'un beau volume : Environ 72m2 habitables + 13,42m2 de varangue. Situé au 1er étage dans une résidence récente avec ascenseur, bien entretenue, proche des commerces et du village artisanal de l'Eperon. **** Composé d'... Réf. 7289JBPrmi Sud/ouest 270 000 € soit 3 733 € /m² l'Éperon : grand t3 avec jardin + un parking sous-sol 8 Appartement 3 pièces - Terrain 31 m² Mi-pente de l'Ouest (97435) 3 pièces, 2 chambres, 69 m² hab., terrain 31 m² EXCLUSIVITE PRMI ! Dans une résidence récente et sécurisée, découvrez ce bel appartement T3 traversant d'environ 69m2 habitables, prolongée par une varangue de 13m2 donnant accès à un jardin d'environ 31m2 . L'appartement est vendu avec une place de parking en sous-sol. **** Il se compose ... Réf. 7489JBPrmi Sud/ouest 283 000 € soit 4 084 € /m² 8 Appartement 3 pièces Mi-pente de l'Ouest (97435) 3 pièces, 2 chambres, 72 m² hab. Éperon - Spacieux T3 traversant avec 2 parkings ( LIBRE D'OCCUPATION) - Dans une résidence récente avec ascenseur, bien entretenue et idéalement située à proximité immédiate des commerces et du village artisanal de l'Éperon, CITYA St Gilles à le plaisir de vous présenter ce bel appartemen... Réf. TAPP956204Citya France Immobilier Saint-gilles 270 000 € soit 3 736 € /m² résidence le nico 3 Appartement 3 pièces Mi-pente de l'Ouest (97435) 3 pièces, 2 chambres, 63 m² hab. L’Éperon ou la douceur de vivre de Saint Gilles les Hauts… Devenu une alternative à la chaleur et la densité de l’habitat sur Saint gilles les bains, l’Éperon attire par son climat tempéré, sa vue sur l’Océan, son golf, son accès rapide à la route des tamarins, et son petit villag... Réf. MH2512T31457Iff Transaction 315 000 € soit 4 998 € /m² résidence le nico appartement saint paul 3 pièce(s) à saint gilles les hauts 4 Appartement 3 pièces Mi-pente de l'Ouest (97435) 3 pièces, 2 chambres, 67 m² hab. Découvrez Le NICO, une résidence neuve confidentielle de seulement 15 logements, idéalement située, secteur recherché de Saint-Gilles-les-Hauts. Appartement T3 en rez de jardin les appartements ont été conçus pour offrir : de beaux volumes intérieurs, une luminosité optimale, Prestations... Réf. 6772Ha.immo 345 000 € soit 5 126 € /m²