Préciser votre budget :
OK
Préciser les pièces :
OK
Préciser les chambres :
OK
Préciser la surface :
OK
Préciser la surface :
OK
Plus de critères
Retour aux annonces

A louer Appartement 4 pièces - Terrain 301 m² Saint-André (97440) - Réunion

1 500 € cc / mois*
miniature miniature

Appartement neuf de 144m² prés de Saint-André

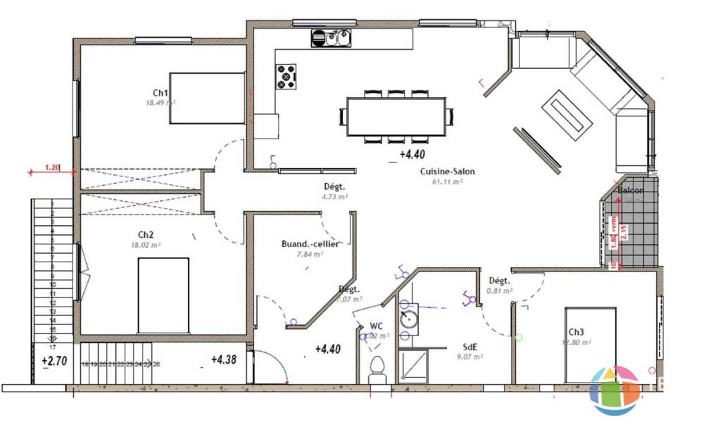
Klbert du rseau Tekaimmo propose la location un superbe appartement neuf de 144m2 situ au dessus d'un local professionnel, occupant tout le premier tage d'un btiment R+1, proximit du centre-ville de Saint-Andr. Elle se compose d'un sjour et d'une cuisine ouverte de 61m2. Avec 3 chambres, une salle de bain avec douche italienne, et une buanderie/sellier de 7,84m2. avec une balcon vue sur l'avenue.Tous le commodit sont a proximit, cole, collge, docteur, pharmacie, etc..Ce bien sera disponible le 1er janvier 2026, elle est en phrase de finition les photos sont non contractuelle. \nRf mandat: 6595Montant HC du loyer mensuel: 1464,00 . Montant taxe d'enlvement des ordures mnagres mensualiss : 36 (soumis rgularisation annuelle)Soit un montant total loyer mensuel de 1500.00 par moisHonoraires la charge du locataire : 1464.00, soit 11/ m plafonn 1 mois de loyer dont 432 pour l'tat des lieux d'entre (soit 3/ m) Dpt de garantie : 1464.00 , soit un mois de loyer hors charge.Pour tout renseignement ou une visite, contacter M. Seusse Klbert EIagent mandataire indpendant du rseau Teka Immo au [coordonnées réservées], ou par mail : [coordonnées réservées] Inscrit au RSAC de St Denis sous le numro :510883903 . Barme visible sur le site de l'agence TEKA IMMO ou http://www.tekaimmo.fr/pdf/honoraires.pdf. Sous la responsabilit ditoriale de l'agent. Les informations sur les risques auxquels ce bien est expos sont disponibles sur le site Gorisques : www.georisques.gouv.f

Caractéristiques de cet appartement 4 pièces à louer à Saint-André (97440)

  • Nombre de pièces : 4 pièces
  • Nombre de chambres : 3 chambres
  • Surface habitable : 144 m²
  • Surface du terrain : 301 m²
  • Référence de l'annonce : 6595
  • Loyer : 1 500 € CC (Charges Comprises)*
  • *Honoraires charge locataire : 5 000 € TTC

Cette annonce immobilière vous est proposée par :

TEKA IMMOBILIER

97400 Saint-Denis

Ce bien vous intéresse ?
Contactez l'agence dès aujourd'hui...

En savoir plus sur l'agence TEKA IMMOBILIER

Cette agence immobilière propose à ce jour 119 biens à la vente et 21 biens à la location sur Immodesiles.fr.

Vous pouvez consulter le barème d'honoraires de l'agence.

Autres appartements à louer à Saint-André (97440), susceptibles de vous intéresser

a louer 3 appartements dans immeuble  neuf saint andré 5 Appartement 3 pièces - Terrain 900 m² Saint-André (97440) 3 pièces, 2 chambres, 60 m² hab., terrain 900 m² A louer 3 appartements dans un immeuble neuf de 3 tages avec ascenseur comprenant 9 logements :Les 3 logements sont composs comme suit:sjour, cuisine , 2 chambres ,une salle d'eau avec toilette, varangue et une place de parking.3 appartements de 60,24 M2 + une varangue de 9m2.Montant du loyer1000+5... Réf. 2024-795Teka Immobilier 1 050 € cc / mois a louer appartement en duplex type f3/4 à proximité immédiat du centre vile de saint-andré 8 Appartement 3 pièces Saint-André (97440) 3 pièces, 74 m² hab. Ofim de Saint-André a le plaisir de mettre à la location ce bel appartement de type F3/4 en duplex de 73 m² situé au premier étage d'un petit immeuble de 4 lots. Il se compose d'un séjour salle à manger, d'une cuisine séparée, d'une sdb avec douche à l'italienne, d'un wc séparé, de deux... Réf. 724Ofim 813 € cc / mois a louer appartement f3/4 au rdc au lieu dit petit bazar à saint-andré 6 Appartement 3 pièces Saint-André (97440) 3 pièces, 65 m² hab. Ofim de Saint-André a le plaisir de mettre à la location cet appartement de type F3/4 se situant au rdc d'un petit immeuble privé de 1 étage. D'une surface de 65 m² environ, il est composé d'un séjour salle à manger, d'une cuisine équipée de plaque, hotte, placards, d'une SDB avec douche ... Réf. 721Ofim 707 € cc / mois a louer appartement f3 de 64,87 m² à proximité du centre ville de saint-andré 8 Appartement 3 pièces Saint-André (97440) 3 pièces, 65 m² hab. Ofim de St-André a le plaisir de mettre à la location ce bel appartement de type F3 de 64,87 m² composé de deux chambres avec brasseur d'air, d'un séjour salle à manger, d'une cuisine ouverte sur le séjour, d'une salle de bain avec baignoire et d'un wc séparé. Il se situe au 1er étage d'u... Réf. 778Ofim 720 € cc / mois a louer appartement spacieux de type f3 avec parking à proximité direct du centre ville 6 Appartement 3 pièces Saint-André (97440) 3 pièces, 65 m² hab. Ofim de Saint-André a le plaisir de mettre à la location cet appartement de type F3 au 1er étage d'un petit immeuble de 4 logements, avec place de parking. L'appartement est constitué d'un grande véranda ouverte, d'un grand séjour salle à manger donnant sur une cuisine ouverte ( cuisine équi... Réf. 729Ofim 750 € cc / mois