Préciser votre budget :
OK
Préciser les pièces :
OK
Préciser les chambres :
OK
Préciser la surface :
OK
Préciser la surface :
OK
Plus de critères
Retour aux annonces

A louer Appartement 4 pièces - Terrain 290 m² Saint-André (97440) - Réunion

1 500 € cc / mois*
miniature miniature

Appartement neuf de 144m² prés de Saint-André

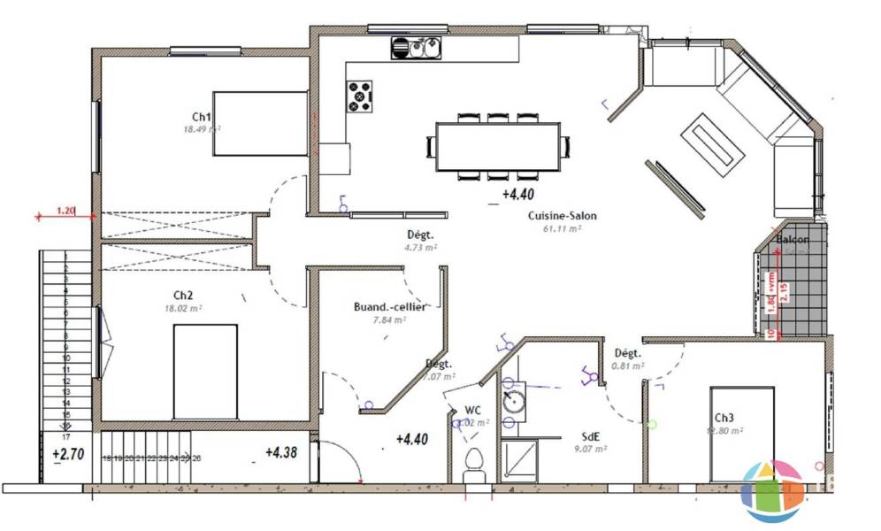
Klbert du rseau Tekaimmo propose la location un superbe appartement neuf de 144m2 situ au dessus d'un local professionnel, occupant tout le premier tage d'un btiment R+1, proximit du centre-ville de Saint-Andr. Elle se compose d'un sjour et d'une cuisine ouverte de 61m2. Avec 3 chambres, une salle de bain avec douche italienne, et une buanderie/sellier de 7,84m2. avec une balcon vue sur l'avenue.Tous le commodit sont a proximit, cole, collge, docteur, pharmacie, etc..Ce bien sera disponible le 1er janvier 2026, elle est en phrase de finition les photos sont non contractuelle. \nRf mandat: 6595Montant HC du loyer mensuel: 1464,00 . Montant taxe d'enlvement des ordures mnagres mensualiss : 36 (soumis rgularisation annuelle)Soit un montant total loyer mensuel de 1500.00 par moisHonoraires la charge du locataire : 1464.00, soit 11/ m plafonn 1 mois de loyer dont 255 pour l'tat des lieux d'entre (soit 3/ m) Dpt de garantie : 1464.00 , soit un mois de loyer hors charge.Pour tout renseignement ou une visite, contacter M. Seusse Klbert EIagent mandataire indpendant du rseau Teka Immo au [coordonnées réservées], ou par mail : [coordonnées réservées] Inscrit au RSAC de St Denis sous le numro :510883903 . Barme visible sur le site de l'agence TEKA IMMO ou http://www.tekaimmo.fr/pdf/honoraires.pdf. Sous la responsabilit ditoriale de l'agent. Les informations sur les risques auxquels ce bien est expos sont disponibles sur le site Gorisques : www.georisques.gouv.f

Caractéristiques de cet appartement 4 pièces à louer à Saint-André (97440)

  • Nombre de pièces : 4 pièces
  • Nombre de chambres : 3 chambres
  • Surface habitable : 144 m²
  • Surface du terrain : 290 m²
  • Référence de l'annonce : 6595
  • Loyer : 1 500 € CC (Charges Comprises)*
  • *Honoraires charge locataire : 10 000 € TTC

Cette annonce immobilière vous est proposée par :

TEKA IMMOBILIER

97400 Saint-Denis

Ce bien vous intéresse ?
Contactez l'agence dès aujourd'hui...

En savoir plus sur l'agence TEKA IMMOBILIER

Cette agence immobilière propose à ce jour 119 biens à la vente et 15 biens à la location sur Immodesiles.fr.

Vous pouvez consulter le barème d'honoraires de l'agence.

Autres appartements à louer à Saint-André (97440), susceptibles de vous intéresser

6 Appartement 3 pièces Saint-André (97440) 3 pièces, 52 m² hab. À LOUER Découvrez ce charmant appartement T3 situé dans la belle commune de Saint André, au cÅ“ur de l'île de la Réunion. Avec une superficie généreuse de 51 m², cet espace de vie offre une atmosphère chaleureuse et accueillante, idéale pour les familles ou les professionnels en quête d... Réf. GES02820058-542Citya Belvedere 790 € cc / mois 6 Appartement 3 pièces Saint-André (97440) 3 pièces, 61 m² hab. EXCLUSIVITÉ RESIDENCE DOMAINE DE CHAMP BORNE En location : à SAINT ANDRE (97440), venez découvrir cet appartement T3 de 61,35 m². Il propose au rez-de-chaussée : Une entrée, un séjour/salle à manger avec coin cuisine aménagée, un wc, une varangue de 14.43 m2, un escalier. A l'étage : deu... Réf. GES25510041-542Citya Belvedere 849 € cc / mois 1 Appartement 2 pièces - Terrain 30 m² Saint-André (97440) 2 pièces, 1 chambre, 40 m² hab., terrain 30 m² À LOUER : Bienvenue dans votre futur cocon à Saint André, un appartement récent T2 qui vous attend avec impatience ! Avec ses 39 m² bien pensés, cet espace est idéal pour ceux qui recherchent à la fois confort et praticité. Dès l'entrée, vous serez séduit par la climatisation qui vous ... Réf. GES25510002-542Citya Belvedere 665 € cc / mois a louer appartement f3/4 au rdc au lieu dit petit bazar à saint-andré 6 Appartement 3 pièces Saint-André (97440) 3 pièces, 65 m² hab. Ofim de Saint-André a le plaisir de mettre à la location cet appartement de type F3/4 se situant au rdc d'un petit immeuble privé de 1 étage. D'une surface de 65 m² environ, il est composé d'un séjour salle à manger, d'une cuisine équipée de plaque, hotte, placards, d'une SDB avec douche ... Réf. 721Ofim 707 € cc / mois 3 Appartement 2 pièces Saint-André (97440) 2 pièces, 1 chambre, 46 m² hab. L'agence Citya Belvédère vous propose à la location un appartement de deux pièces (1chambre) spacieux, Résidence Les Serins à la limite de Sainte-Suzanne et Saint André, idéalement situé à Cambuston entre la poste et la station essence. Dans un environnement agréable, à proximité premiÃ... Réf. GES01790086-542Citya Belvedere 667 € cc / mois