Préciser votre budget :
OK
Préciser les pièces :
OK
Préciser les chambres :
OK
Préciser la surface :
OK
Préciser la surface :
OK
Plus de critères
Retour aux annonces

A vendre Terrain 217 m² Saint-Pierre (97410) - Réunion

232 000 € FAI* soit 1 069 € /m²
miniature miniature miniature miniature miniature miniature
Empruntez aux meilleures conditionslogo meilleur taux

chez PRMI / Terrain constructible "Quartier pêcheur" Terre-Sainte (97410)

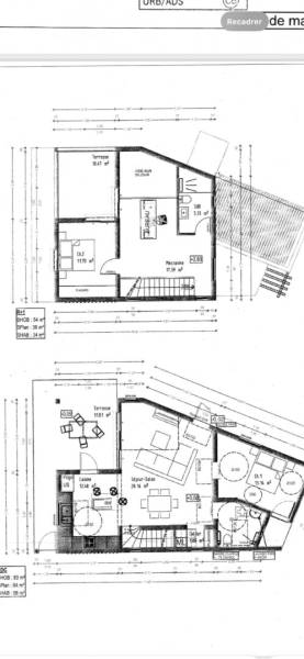
Emplacement très recherché : "Quartier pêcheur" Terre-Sainte ! Résidentiel et calme, proche de la promenade des Alizés, de la plage, des restaurants, des écoles et bien sûr des commerces du centre ville de Saint-Pierre ! Terrain de 217 m2 : plat, nu, à bâtir. Celui-ci bénéficie déjà d'un permis de construire obtenu en 2022. Pour y édifier une maison individuelle de 92 m2 (habitable) de type R+1. Voir plan + photos. -- IDEAL POUR UNE RESIDENCE PRINCIPALE / SECONDAIRE / LOCATION SAISONNIERE -- Informations complémentaires : - borné (via géomètre) - non viabilisé (mais raccordements proches y compris au tout à l'égout) - non clôturé -exposition (nord) ps : pas de copropriété, pas de lotissement et pas de servitude ! Visite possible avec le spécialiste de Saint-Pierre : Arnaud TREMOULET. Tél : [coordonnées réservées] ou [coordonnées réservées] Mail : [coordonnées réservées] Honoraires à la charge du vendeur. Bien non soumis au DPE. Les informations sur les risques naturels auxquels ce bien peut-être exposé sont disponibles sur le site : georisques.gouv.fr

Caractéristiques de ce terrain à vendre à Saint-Pierre (97410)

  • Surface habitable : 217 m²
  • Surface du terrain : 217 m²
  • Référence de l'annonce : 7414AT
  • Prix de vente : 232 000 € FAI (Frais d'Agence Inclus)*
  • * Honoraires à la charge du vendeur
Empruntez aux meilleures conditionslogo meilleur taux

Cette annonce immobilière vous est proposée par :

PRMI Sud/Ouest

Ce bien vous intéresse ?
Contactez l'agence dès aujourd'hui...

En savoir plus sur l'agence PRMI Sud/Ouest

Cette agence immobilière propose à ce jour 56 biens à la vente sur Immodesiles.fr.

Vous pouvez consulter le barème d'honoraires de l'agence.

Autres terrains à vendre à Saint-Pierre (97410), susceptibles de vous intéresser

terrain mont vert 598 m2 3 Terrain 598 m² Saint-Pierre (97410) terrain 598 m² Beau terrain à Mont-Vert-Les-Hauts. d'une surface totale de 598 M² dont 257 m² en zone PPR mouvement de terrain. Cette parcelle se situe en Zone Uf, Zone urbaine mixte de faible intensité, elle bénéficie de 50% d'emprise au sol et d'une possibilité de créer R+1+comble 11 m au faitage. Les h... Réf. 3201Guy Hoquet Saint-pierre 110 000 € soit 184 € /m² saint pierre 97410 - terrain À bÂtir - accÈs facile - vue imprenable - proche commoditÉs - cadre verdoyant 2 Terrain 530 m² Saint-Pierre (97410) terrain 530 m² SAINT PIERRE 97410 - Dans un environnement calme et verdoyant, venez visiter ce terrain d'environ 530 m2 - en zone UF. Bien proportionné. Vue dégagée. Facile d'accès. Secteur résidentiel. À proximité des commodités. À NE PAS MANQUER ! Ref 5477 Les informations sur les risques auxquels ce bi... Réf. 25-5477Le Forum Immobilier 179 000 € soit 338 € /m² grands-bois - parcelle viabilisÉe de 366m2 : kaisary 2 8 Terrain 366 m² Saint-Pierre (97410) terrain 366 m² À la recherche d'un terrain prêt à accueillir vos rêves de maison dans le sud de l’île ? Découvrez nos parcelles prêtes à construire nichées aux portes de Saint-Pierre (direction sud-ouest). La résidence Kaisary vous promet une qualité de vie incomparable. Idéalement situé dans le qua... Réf. 762-2-02L'agence By Cbo 179 000 € soit 489 € /m² a vendre - quatre terrains constructibles - saint pierre - a partir de 165 000 € 3 Terrain 426 m² Saint-Pierre (97410) terrain 426 m² A VENDRE - Le Cabinet Habilis vous présente à la vente quatre terrains constructibles et bornés, issus d’une grande parcelle, idéalement situés à Saint-Pierre, dans le quartier de Bois d'Olives. Proche de toutes commodités, ces lots offrent un cadre de vie paisible, tout en restant à proxi... Réf. 4584-TPCabinet Habilis 159 900 € soit 375 € /m² saint pierre 97410 - terrain plat À bÂtir - beau potentiel - secteur prisÉ 2 Terrain 580 m² Saint-Pierre (97410) terrain 580 m² SAINT PIERRE 97410 - Dans le secteur prisé de la RAVINE DES CABRIS, venez découvrir cette parcelle plate d'environ 580 m2 soit environ 390 m2 cloturable, avec maison à terminer ou à démolir. Située au cœur d'un quartier calme et résidentiel, à proximité des commodités. À VOIR RAPIDEMENT ... Réf. 24-4994Le Forum Immobilier 192 000 € soit 331 € /m²