Préciser votre budget :
OK
Préciser les pièces :
OK
Préciser les chambres :
OK
Préciser la surface :
OK
Préciser la surface :
OK
Plus de critères
Retour aux annonces

A louer Appartement 4 pièces - Terrain 427 m² Saint-André (97440) - Réunion

1 500 € cc / mois*
miniature miniature

Appartement neuf de 144m² prés de Saint-André

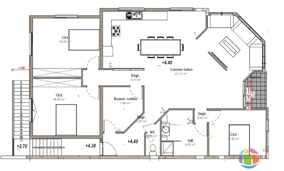
Klbert du rseau Tekaimmo propose la location un superbe appartement neuf de 144m2 situ au dessus d'un local professionnel, occupant tout le premier tage d'un btiment R+1, proximit du centre-ville de Saint-Andr. Elle se compose d'un sjour et d'une cuisine ouverte de 61m2. Avec 3 chambres, une salle de bain avec douche italienne, et une buanderie/sellier de 7,84m2. avec une balcon vue sur l'avenue.Tous le commodit sont a proximit, cole, collge, docteur, pharmacie, etc..Ce bien sera disponible le 1er janvier 2026, elle est en phrase de finition les photos sont non contractuelle. \nRf mandat: 6595Montant HC du loyer mensuel: 1464,00 . Montant taxe d'enlvement des ordures mnagres mensualiss : 36 (soumis rgularisation annuelle)Soit un montant total loyer mensuel de 1500.00 par moisHonoraires la charge du locataire : 1464.00, soit 11/ m plafonn 1 mois de loyer dont 255 pour l'tat des lieux d'entre (soit 3/ m) Dpt de garantie : 1464.00 , soit un mois de loyer hors charge.Pour tout renseignement ou une visite, contacter M. Seusse Klbert EIagent mandataire indpendant du rseau Teka Immo au [coordonnées réservées], ou par mail : [coordonnées réservées] Inscrit au RSAC de St Denis sous le numro :510883903 . Barme visible sur le site de l'agence TEKA IMMO ou http://www.tekaimmo.fr/pdf/honoraires.pdf. Sous la responsabilit ditoriale de l'agent. Les informations sur les risques auxquels ce bien est expos sont disponibles sur le site Gorisques : www.georisques.gouv.f

Caractéristiques de cet appartement 4 pièces à louer à Saint-André (97440)

  • Nombre de pièces : 4 pièces
  • Nombre de chambres : 3 chambres
  • Surface habitable : 144 m²
  • Surface du terrain : 427 m²
  • Référence de l'annonce : 6595
  • Loyer : 1 500 € CC (Charges Comprises)*
  • *Honoraires charge locataire : 13 665 € TTC

Cette annonce immobilière vous est proposée par :

TEKA IMMOBILIER

97400 Saint-Denis

Ce bien vous intéresse ?
Contactez l'agence dès aujourd'hui...

En savoir plus sur l'agence TEKA IMMOBILIER

Cette agence immobilière propose à ce jour 118 biens à la vente et 15 biens à la location sur Immodesiles.fr.

Vous pouvez consulter le barème d'honoraires de l'agence.

Autres appartements à louer à Saint-André (97440), susceptibles de vous intéresser

À louer a st andre   grand t2 rénové avec varangue et parking 7 Appartement 2 pièces Saint-André (97440) 2 pièces, 1 chambre, 53 m² hab. Découvrez ce superbe appartement T2 entièrement rénové, situé au 2ème et dernier étage d’une résidence sécurisée. Offrant de beaux volumes et une luminosité agréable, ce logement est idéal pour ceux qui recherchent confort et praticité. Il se compose d’un spacieux séjour avec cuis... Réf. 150BGti 630 € cc / mois 1 Appartement 2 pièces - Terrain 30 m² Saint-André (97440) 2 pièces, 1 chambre, 40 m² hab., terrain 30 m² À LOUER : Bienvenue dans votre futur cocon à Saint André, un appartement récent T2 qui vous attend avec impatience ! Avec ses 39 m² bien pensés, cet espace est idéal pour ceux qui recherchent à la fois confort et praticité. Dès l'entrée, vous serez séduit par la climatisation qui vous ... Réf. GES25510002-542Citya Belvedere 665 € cc / mois a louer appartement f2 au r+3 à saint-andré 8 Appartement 2 pièces Saint-André (97440) 2 pièces, 54 m² hab. Ofim vous propose à la location cet appartement de type F2 de 54,48m2 sur la résidence CORIANDRE à Saint André. Cet appartement comprend: une cuisine équipée, une pièce principale climatisée avec placard, salle d'eau toilette, terrasse, parking, ascenseur Il est situé à proximité des éc... Réf. 1849Ofim 650 € cc / mois a louer appartement f3 au 1er et dernier étage d'un petit immeuble de 2 logements 8 Appartement 3 pièces Saint-André (97440) 3 pièces, 80 m² hab. Ofim de Saint-André a le plaisir de mettre à la location cet appartement spacieux de 80 m² se situant au 1er étage d'un petit immeuble de 2 logements. Le bien se constitue comme suit : Au rdc l'entrée avec un escalier privatif amenant à l'appartement au 1er étage. Au 1er étage nous retrou... Réf. 579Ofim 724 € cc / mois a louer appartement en duplex type f3/4 à proximité immédiat du centre vile de saint-andré 8 Appartement 3 pièces Saint-André (97440) 3 pièces, 74 m² hab. Ofim de Saint-André a le plaisir de mettre à la location ce bel appartement de type F3/4 en duplex de 73 m² situé au premier étage d'un petit immeuble de 4 lots. Il se compose d'un séjour salle à manger, d'une cuisine séparée, d'une sdb avec douche à l'italienne, d'un wc séparé, de deux... Réf. 724Ofim 813 € cc / mois